place
Наши филиалы: Минск

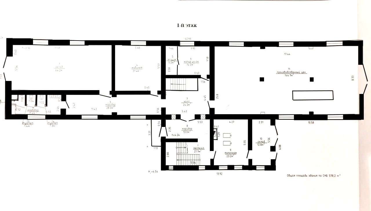
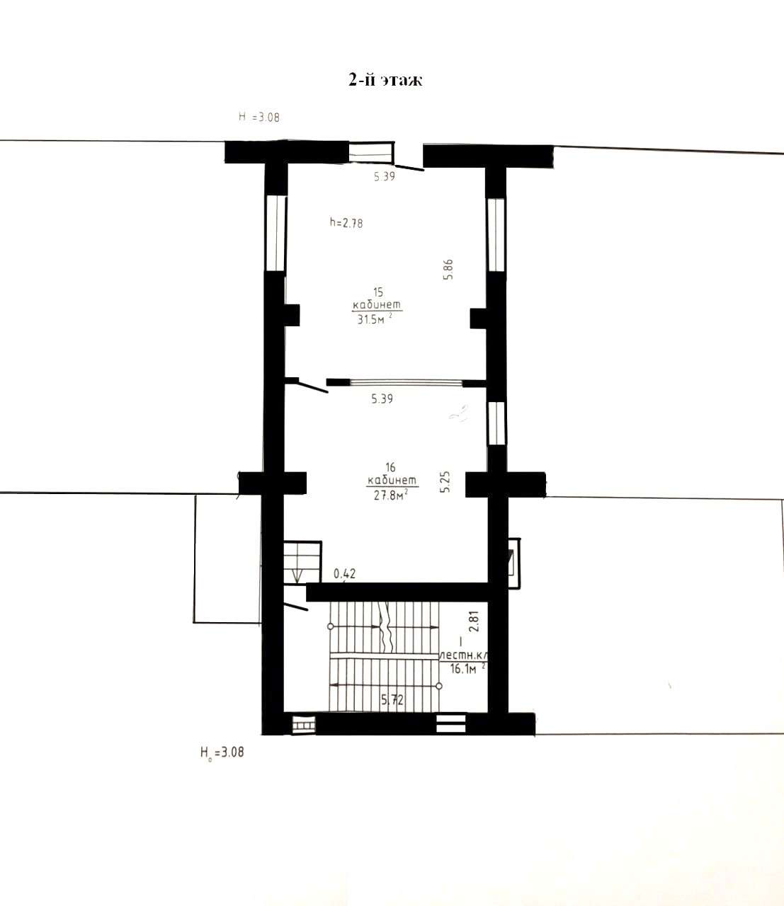
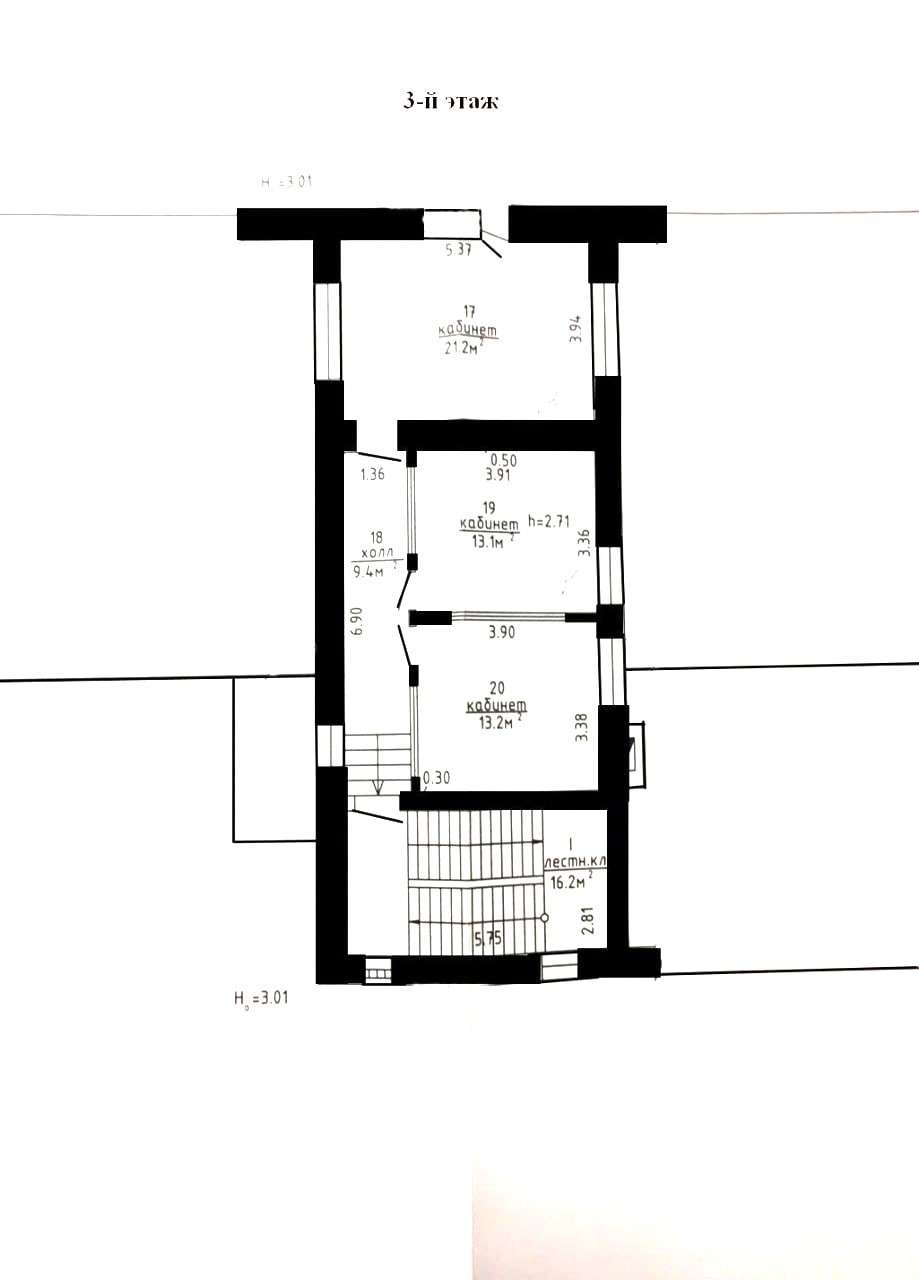
Отдельно стоящее здание на 1 га земли в границах Уручье (Военный городок) - Колодищи.3-х этажное здание площадью 578 кв.м. Назначение - административно-хозяйственное.На 1-м этаже расположены производственные помещения: 64 кв.м., 144 кв.м., два смежных ( 31 кв.м.+19 кв.м.), котельня 9 кв.м. (отапливается твердым топливом), сан./узел.;Высота потолков 4 м, два цеха имеют распашные ворота, отопление, естественное освещение, свет, вода ( собственная скважина).На 2-м этаже: 2 смежных помещения ( 27.8 кв.м.+ 31.5 кв.м.);На 3-м этаже: 3 офисных помещения ( 13 кв.м., 13 кв.м., 21 кв.м).Здание расположено в лесу, отличные подъездные пути ( со стороны агрогородка и трассы), рядом остановка городского автобуса №167 ( от ст.метро Уручье).Назначение земельного участка - земельный участок для строительства административно- производственного корпуса ( реконструкция выкупленного здания) и артезианской скважины ( право постоянного пользования).Площадь участка 0.94 га.Все помещения сдаются в аренду, пустующих площадей нет.Без комиссии агенству

 

Ещё больше объектов недвижимости в нашем Telegram-канале @urielt_minsk

1 344 105.00 BYN 450 000.00$ 2 321.42 BYN/м2 777.20$/м2
Предложить свою цену
Заполните телефон!
Введите цену или отметьте галочкой "Консультация по кредиту"
Нажимая "Отправить" я даю согласие на обработку персональных данных
Область
Минская область
Район области
Минский
Площадь, м2
579
Кол-во помещений
10
Этаж
3/3
Материалы дома
Кирпич
Ремонт
Хороший
Сан. узел (кол-во)
Совмещенный: 1
Отопление
Другое
Водоснабжение
Есть
Канализация
Есть
Участок, с
100
Номер и дата договора
245/1 от 16-12-2022
Посмотреть на карте