place
Наши филиалы: Минск

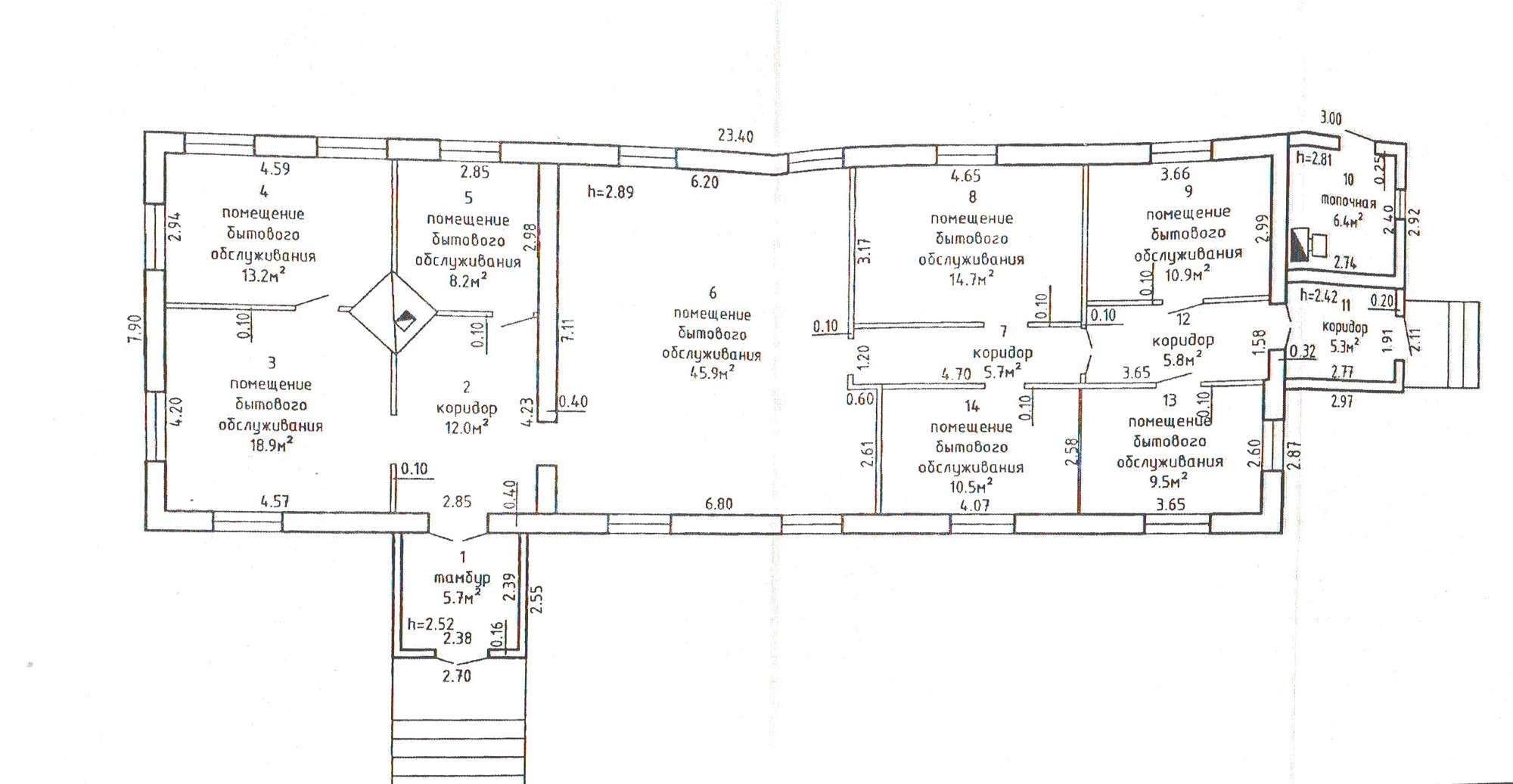
Продаётся здание площадью 172,7 м² в 7 км от города Крупки и 125 км от Минска.

 

- Обшито сайдингом.

- Установлены двухкамерные окна ПВХ.

- Оборудовано твердотопливным котлом.

- Крыша в отличном состоянии, здание сухое.

 

Для уточнения деталей звоните!

14 797.50 BYN 5 000.00$ 85.53 BYN/м2 28.90$/м2
Предложить свою цену
Заполните телефон!
Введите цену или отметьте галочкой "Консультация по кредиту"
Нажимая "Отправить" я даю согласие на обработку персональных данных
Область
Минская область
Район области
Крупский
Площадь, м2
173
Кол-во помещений
2
Этаж
1/1
Год постройки
1989
Материалы дома
Кирпич
Участок, с
6.8
Номер и дата договора
130/1 от 22-08-2025
Посмотреть на карте