place
Наши филиалы: Минск

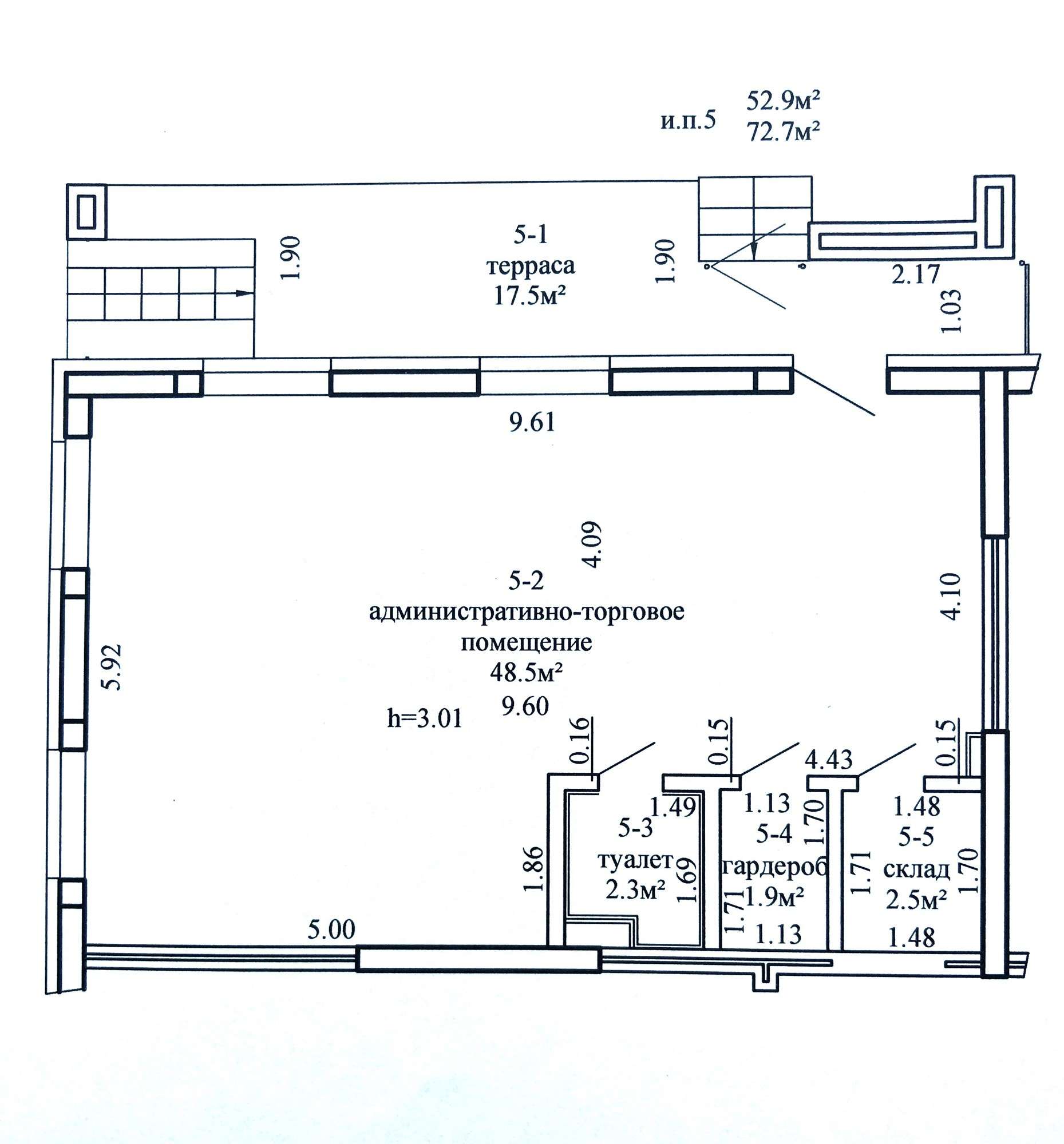
Торговое помещение

Аренда Минск, Игоря Лученка, 29

Сдаётся в аренду торговое помещение на ул. И. Лученка 29 (дом «Гавана»), общей площадью 72,7 кв.м. Дом расположен в быстроразвивающимся и плотно населенном районе

«Minsk World». Торговое помещение расположено на первом этаже 25-этажного жилого дома, с отельным входом, что обеспечивает ежедневный доступ 24/7. Помещение удобно

расположено, угловое: окна выходят на улицу Ж. Алфёрова и на улицу И. Лученка 27.

Высокие потолки, панорамные окна. Чистовая отделка.

 

В помещении обустроена: 1) приточно-вытяжная вентиляция; 2) установлена пожарная сигнализация; 3) установлен кондиционер.

Есть летняя веранда для обустройства столиков при использовании помещения под кафе.

 

В шаговой доступности остановки общественного транспорта, большой пешеходный и автомобильный трафик, в 2024 году открылась станция метро «Аэродромная».

В помещение заведено электричество (мощность 10 КВТ), отопление, водоснабжение, оборудован санузел,. Есть возможность адаптировать помещение под свой бизнес.

Предлагаемая площадь подойдет под различные сферы услуг: магазины, аптеки, кофейни, услуги и другие виды бизнеса.

Арендатор не оплачивает услуги агентства.

4 022.44 BYN 1 381.00$ 55.25 BYN/м2 18.97$/м2
Предложить свою цену
Заполните телефон!
Введите цену или отметьте галочкой "Консультация по кредиту"
Нажимая "Отправить" я даю согласие на обработку персональных данных
Область
Минская область
Район области
Минский
Район
Октябрьский
Микрорайон
Минск Мир
Площадь, м2
72.8
Кол-во помещений
4
Этаж
1/25
Год постройки
2023
Материалы дома
Блок
Ремонт
Хороший
Сан. узел (кол-во)
Совмещенный: 1
Отопление
Другое
Водоснабжение
Есть
Канализация
Есть
Номер и дата договора
19/2А от 17-04-2025
Посмотреть на карте