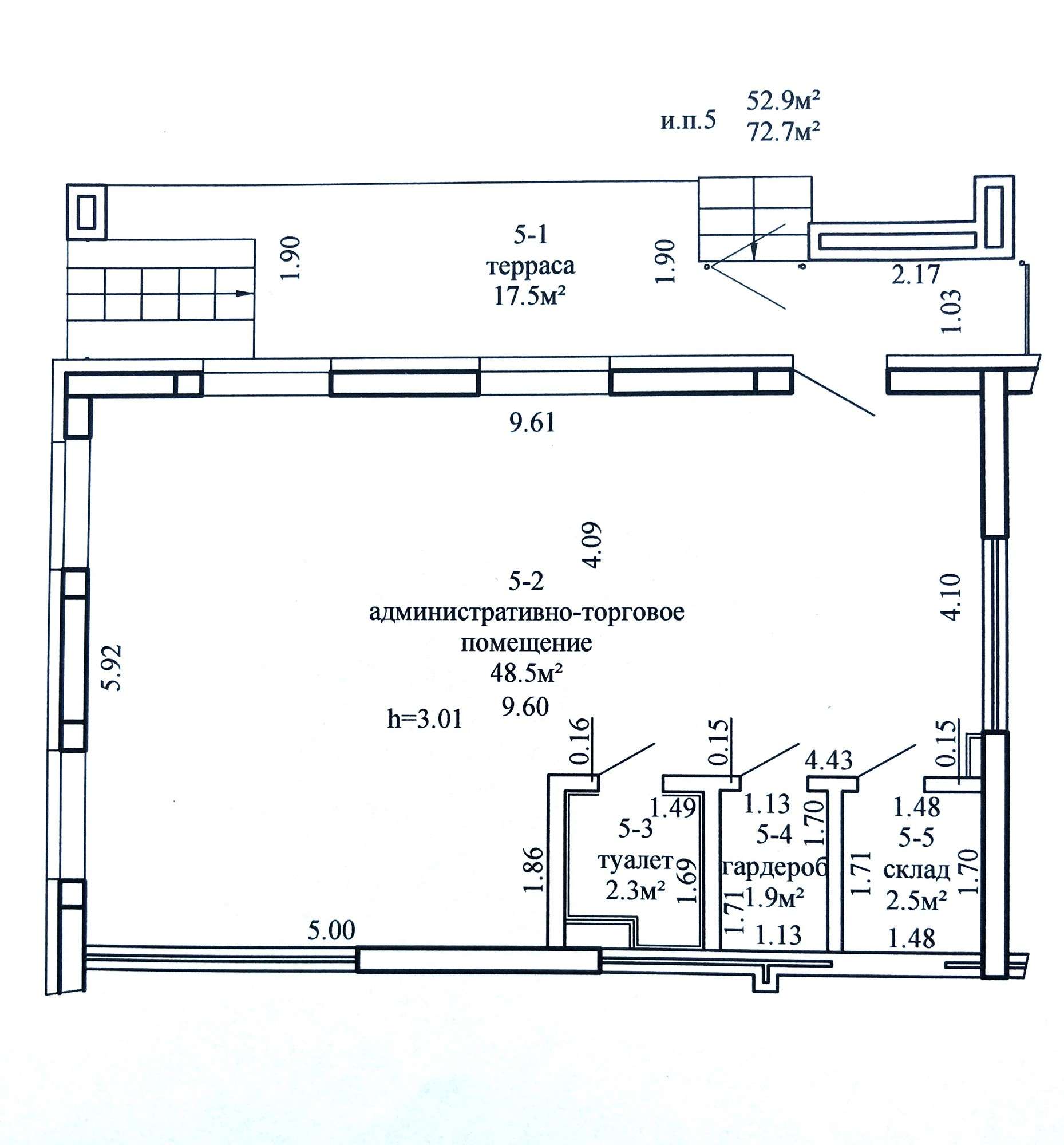
Сдаётся в аренду торговое помещение на ул. И. Лученка 29 (дом «Гавана»), общей площадью 72,7 кв.м. Дом расположен в быстроразвивающимся и плотно населенном районе
«Minsk World». Торговое помещение расположено на первом этаже 25-этажного жилого дома, с отельным входом, что обеспечивает ежедневный доступ 24/7. Помещение удобно
расположено, угловое: окна выходят на улицу Ж. Алфёрова и на улицу И. Лученка 27.
Высокие потолки, панорамные окна. Чистовая отделка.
В помещении обустроена: 1) приточно-вытяжная вентиляция; 2) установлена пожарная сигнализация; 3) установлен кондиционер.
Есть летняя веранда для обустройства столиков при использовании помещения под кафе.
В шаговой доступности остановки общественного транспорта, большой пешеходный и автомобильный трафик, в 2024 году открылась станция метро «Аэродромная».
В помещение заведено электричество (мощность 10 КВТ), отопление, водоснабжение, оборудован санузел,. Есть возможность адаптировать помещение под свой бизнес.
Предлагаемая площадь подойдет под различные сферы услуг: магазины, аптеки, кофейни, услуги и другие виды бизнеса.
Арендатор не оплачивает услуги агентства.
