place
Наши филиалы: Минск

Свободное назначение

Продажа Минск, Одоевского, 131

Продается просторное административное помещение, расположенное на четвертом этаже пятиэтажного отдельностоящего административного здания.

 

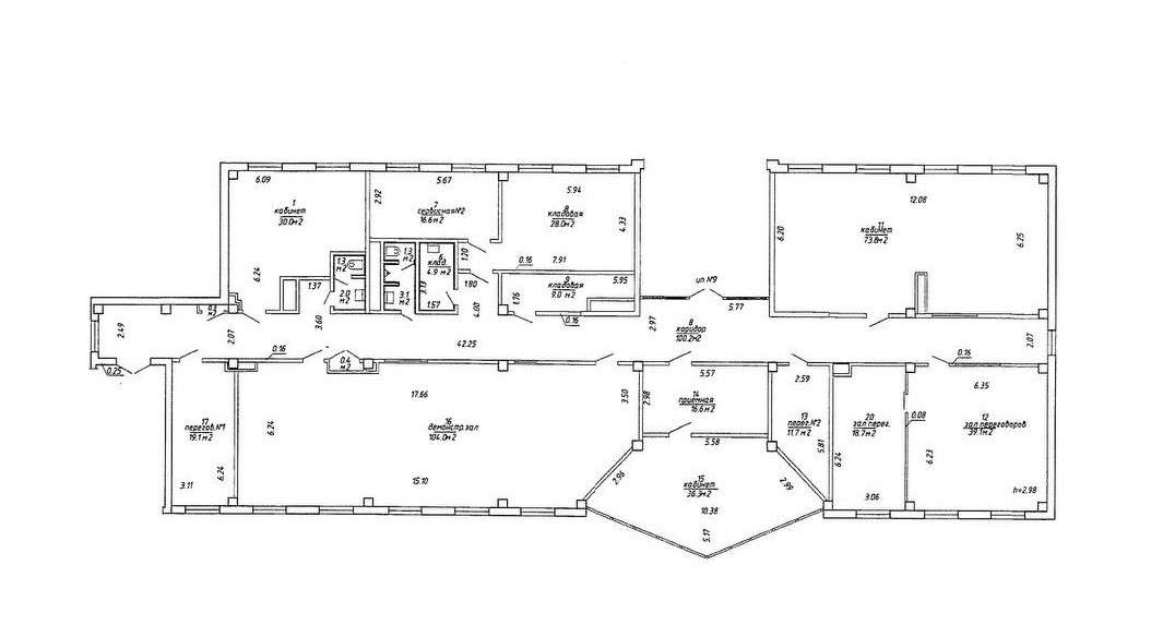
Общая площадь – 516 кв.м.

 

Просторный коридор, кабинеты, приемная, залы переговоров, кладовые, демонстративный зал, сервисная, два сан узла.

 

Доступ возможен 24/7, круглосуточная охрана, пропускная система, по всему периметру здания установлено видеонаблюдение.

 

Плоскостная парковка находится перед зданием, без закрепления машиномест.

 

Естественное освещение, отопление, пожарно-охранная сигнализация, оптоволокно.

 

Отличное транспортное сообщение. Две минуты ходьбы до остановки общественного транспорта, 15 минут ходьбы до станции метро «Кунцевщина». Удобный выезд на основные магистрали города.

 

Идеальный вариант для ведения бизнеса!

 

Покажем в удобное для Вас время.

 

Не упустите шанс стать владельцем данного объекта!

 

Ещё больше объектов недвижимости в нашем Telegram-канале @urielt_minsk

1 155 117.60 BYN 387 000.00$ 2 242.96 BYN/м2 751.46$/м2
Предложить свою цену
Заполните телефон!
Введите цену или отметьте галочкой "Консультация по кредиту"
Нажимая "Отправить" я даю согласие на обработку персональных данных
Область
Минская область
Район области
Минский
Район
Фрунзенский
Площадь, м2
515
Кол-во помещений
10
Этаж
4/5
Материалы дома
Блок
Сан. узел (кол-во)
Совмещенный: 1
Отопление
Другое
Водоснабжение
Есть
Канализация
Есть
Номер и дата договора
18/1А от 26-04-2019
Посмотреть на карте