place
Наши филиалы: Минск

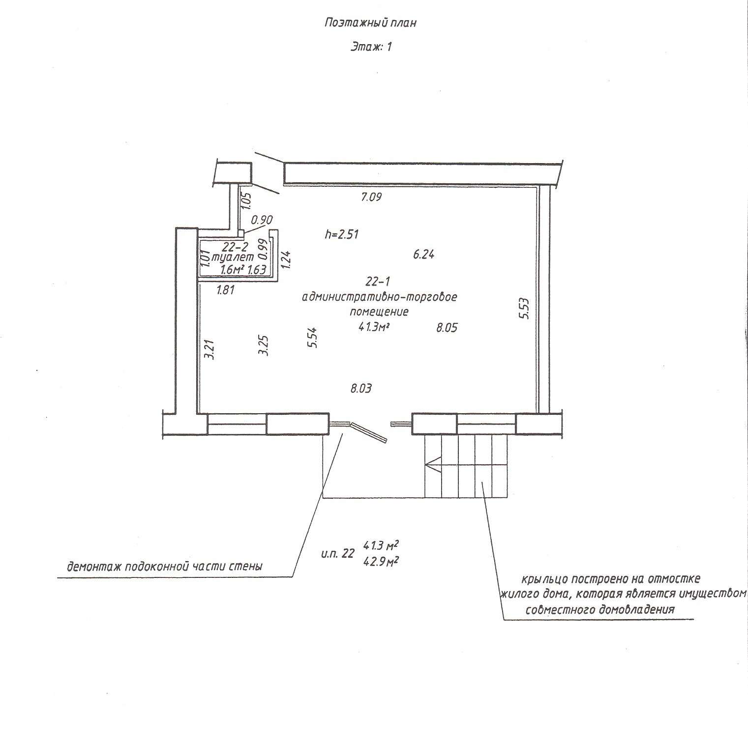
Состояние отличное. Первое заселение. Плитка пол, стены окрашены. Административно торговое, 1 комната. Окна на улицу, рядом остановка общественного транспорта. Хорошая проходимость.

 

Ещё больше объектов недвижимости в нашем Telegram-канале @urielt_minsk

2 982.91 BYN 1 007.20$ 69.37 BYN/м2 23.42$/м2
Предложить свою цену
Заполните телефон!
Введите цену или отметьте галочкой "Консультация по кредиту"
Нажимая "Отправить" я даю согласие на обработку персональных данных
Область
Минская область
Район области
Минский
Район
Первомайский
Микрорайон
Независимости, Кедышко, Волгоградская
Площадь, м2
43
Кол-во помещений
1
Этаж
1/5
Материалы дома
Блок
Ремонт
Хороший
Сан. узел (кол-во)
Совмещенный: 1
Отопление
Центральное
Водоснабжение
Есть
Канализация
Есть
Удобства
Интернет
Телефон
Номер и дата договора
32/2А от 13-09-2024
Посмотреть на карте