place
Наши филиалы: Минск

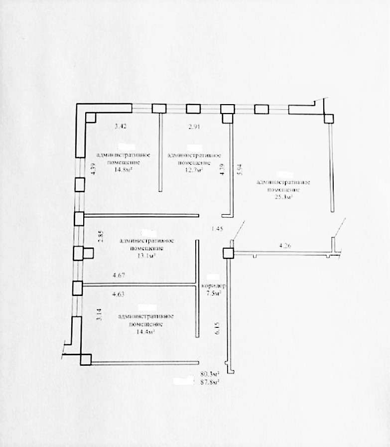
Сдаётся офисное помещение на 6-ом этаже БЦ Капитал ул. Некрасова, 114 - класс B. Площадь - 14.4 кв. м., хороший ремонт, большие окна - стеклопакеты ПВХ, видеонаблюдение, есть система контроля доступа, кондиционер. На первом этаже охрана, большой лифт, 2005г.п.

Возможность аренды и всех помещений на этаже - 88 кв.м.

 

Ремонт: пол - ковровое покрытие, линолеум, плитка; стены под подкраску; потолки - армстронг; стеклопакеты ПВХ, кондиционеры.

 

С/у общий на коридоре, импортный лифт Otis, 2005 г.п., каркасно-блочный.

Наличие парковки и юр.адреса.

 

Хорошее транспортное сообщение (автостанция Карастояновой).

 

Ещё больше объектов недвижимости в нашем Telegram-канале @urielt_minsk

432.00 BYN 150.61$ 30.00 BYN/м2 10.46$/м2
Предложить свою цену
Заполните телефон!
Введите цену или отметьте галочкой "Консультация по кредиту"
Нажимая "Отправить" я даю согласие на обработку персональных данных
Область
Минская область
Район области
Минский
Район
Советский
Микрорайон
Сельхоз посёлок
Площадь, м2
14.4
Кол-во помещений
1
Этаж
6/6
Год постройки
2005
Материалы дома
Блок
Ремонт
Хороший
Сан. узел (кол-во)
Совмещенный: 1
Номер и дата договора
24/1 от 18-02-2025
Посмотреть на карте