place
Наши филиалы: Минск

Офис

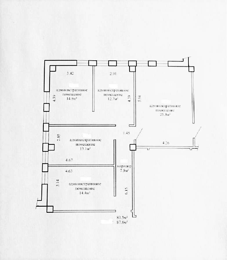
Продажа Минск, Некрасова, 114

Продается офисное помещение площадью 87,8 кв.м., состоящее из 5 кабинетов разных размеров от 12.7 кв.м. до 25,3кв.м., с ремонтом в бизнес-центре "Капитал" по ул. Некрасова, 114.

 

Все помещения с ремонтом: пол - ковровое покрытие, плитка; стены под подкраску; потолки - армстронг; стеклопакеты ПВХ, кондиционеры. С/у общий на коридоре, импортный лифт Otis, 2005 г.п., каркасно-блочный. Наличие парковки и юр.адреса.

 

Хорошее транспортное сообщение (автостанция Карастояновой).

254 936.11 BYN 85 300.00$ 2 897.01 BYN/м2 969.32$/м2
Предложить свою цену
Заполните телефон!
Введите цену или отметьте галочкой "Консультация по кредиту"
Нажимая "Отправить" я даю согласие на обработку персональных данных
Область
Минская область
Район области
Минский
Район
Советский
Микрорайон
Сельхоз посёлок
Площадь, м2
88
Кол-во помещений
6
Этаж
6/6
Год постройки
2005
Материалы дома
Блок
Ремонт
Хороший
Сан. узел (кол-во)
Раздельный: 1
Отопление
Центральное
Водоснабжение
Есть
Канализация
Есть
Удобства
Интернет
Лифт
Номер и дата договора
24/1 от 18-02-2025
Посмотреть на карте