place
Наши филиалы: Минск

5 комнатная квартира

Продажа Ждановичи, Широкая, 8

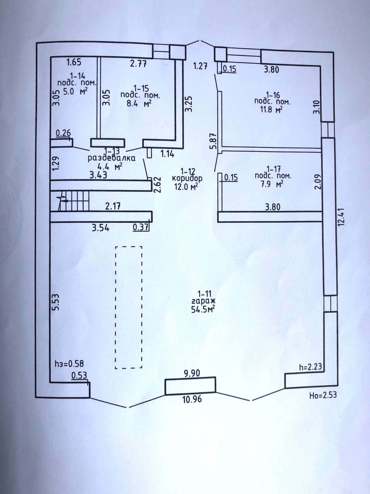
Продаётся просторная квартира в блокированном жилом доме, состоящая из пяти жилых комнат, кухни, трех коридоров, ванной, туалета, четырех подсобных помещений, раздевалки, гаража, с теплицей, тремя сараями, летней кухней в аг. Ждановичи . Дом расположен на земельном участке площадью 0.1297 га в ПНВ. Материал стен-блок обложен кирпичом ,крыша-шифер. Общая площадь квартиры по СНБ - 214.1 кв. м.; общая площадь- 110.1 кв. м.; жилая площадь - 76.9 кв. м. Два уровня. В цокольном уровне обустроен гараж и подсобные помещения. Жилые комнаты и кухня размещены на 1-ом этаже. На окнах стеклопакеты, пол- доска. Санузел в цокольном этаже и в квартире. Все коммуникации заведены в дом: природный газ, центральное водоснабжение и канализация, электричество 220 В. 

Участок обработан, с плодовыми деревьями, кустарниками и теплицей. Недалеко МКАД, до Минска — менее 10 минут на автомобиле.

Торг.

530 784.00 BYN 180 000.00$ 2 480.29 BYN/м2 841.12$/м2
Предложить свою цену
Заполните телефон!
Введите цену или отметьте галочкой "Консультация по кредиту"
Нажимая "Отправить" я даю согласие на обработку персональных данных
Область
Минская область
Район области
Минский
Кол-во комнат квартиры
5
Кол-во раздельных комнат
5
Площадь(О/Ж/К)
214.00/76.90/10.30
Этаж
1/1
Материалы дома
Блок
Кирпич
Ремонт
Косметический
Сан. узел (кол-во)
Раздельный: 1
Номер и дата договора
112/1 от 17-07-2025
Посмотреть на карте