place
Наши филиалы: Минск

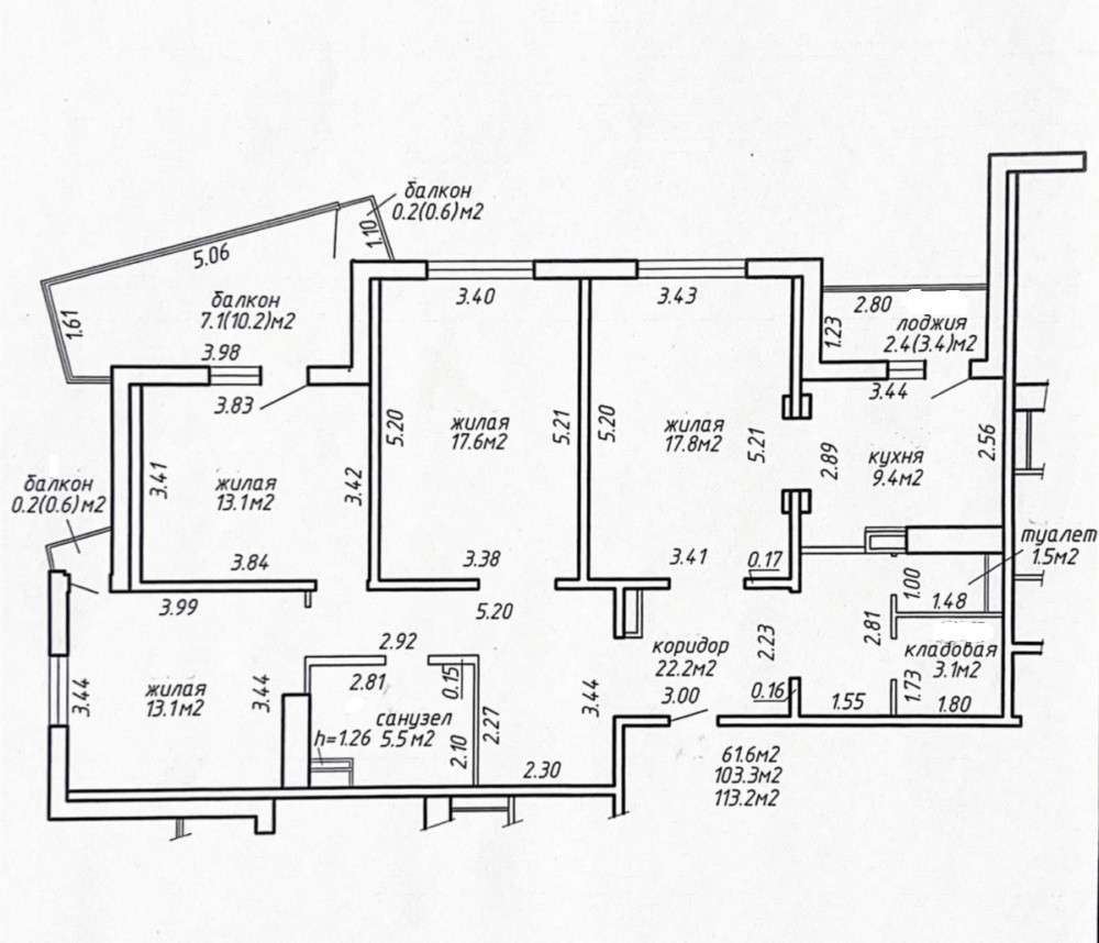
4 комнатная квартира

Продажа Минск, Восточная, 181

Продается просторная, светлая 4-ех комнатная квартира.

Узаконенная перепланировка.

Ремонту несколько лет.

2 санузла, есть гардеробная.

Выполнена шумоизоляция по потолку.

Полы в зоне плитки с подогревом. Ламинат, плитка.

Кабель оптоволокна выведен в каждую комнату (под каждую точку ТВ).

Сторона света- западная.

В будущем возле дома будет станция метро Зеленолужской линии.

Развитая инфраструктура - рядом парк, сады, школы, магазины.

719 016.00 BYN 240 000.00$ 6 980.75 BYN/м2 2 330.10$/м2
Предложить свою цену
Заполните телефон!
Введите цену или отметьте галочкой "Консультация по кредиту"
Нажимая "Отправить" я даю согласие на обработку персональных данных
Область
Минская область
Район области
Минский
Район
Советский
Микрорайон
Зелёный луг
Кол-во комнат квартиры
4
Кол-во раздельных комнат
4
Площадь(О/Ж/К)
103.00/61.60/9.40
Этаж
11/19
Год постройки
2014
Материалы дома
Панель
Балконы
Лоджия застеклена: 1
Балкон застеклен: 1
Сан. узел (кол-во)
Раздельный: 2
Высота потолка
2.66
Номер и дата договора
124/1 от 07-08-2025
Посмотреть на карте