place
Наши филиалы: Минск

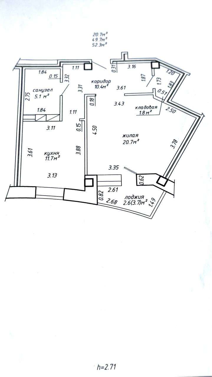
2 комнатная квартира

Продажа Минск, Язепа Дроздовича, 6

Продаётся двухкомнатная квартира евроформата с отличным ремонтом. По техническому паспорту - однокомнатная с изолированной кухней. Перегородка мебельная узаконивания не требует.

 

Квартира полностью готова к проживанию, продается с мебелью и техникой.

Встроенная техника: индукционная варочная панель Weissgauff, духовой шкаф Indesit, вытяжка Lex. Видеодомофон.

Ванна Португалия, инталляция Германия, умывальник Чехия.

 

Дом из ячеистого бетона, теплый, хорошая шумоизоляция.

 

Хороша развита инфраструктура. Рядом школа, детские сады, парки, банк, магазин, аптека.

 

Отличное транспортное сообщение.

349 677.90 BYN 117 000.00$ 6 724.58 BYN/м2 2 250.00$/м2
Предложить свою цену
Заполните телефон!
Введите цену или отметьте галочкой "Консультация по кредиту"
Нажимая "Отправить" я даю согласие на обработку персональных данных
Область
Минская область
Район области
Минский
Район
Ленинский
Микрорайон
Лошица
Кол-во комнат квартиры
2
Кол-во раздельных комнат
2
Площадь(О/Ж/К)
52.00/20.70/11.70
Этаж
8/10
Год постройки
2020
Материалы дома
Блок
Ремонт
Отличный
Балконы
Лоджия застеклена: 1
Сан. узел (кол-во)
Совмещенный: 1
Высота потолка
2.71
Номер и дата договора
142/1 от 29-09-2025
Посмотреть на карте