Продается двухкомнатная квартира с ремонтом в брежневке.
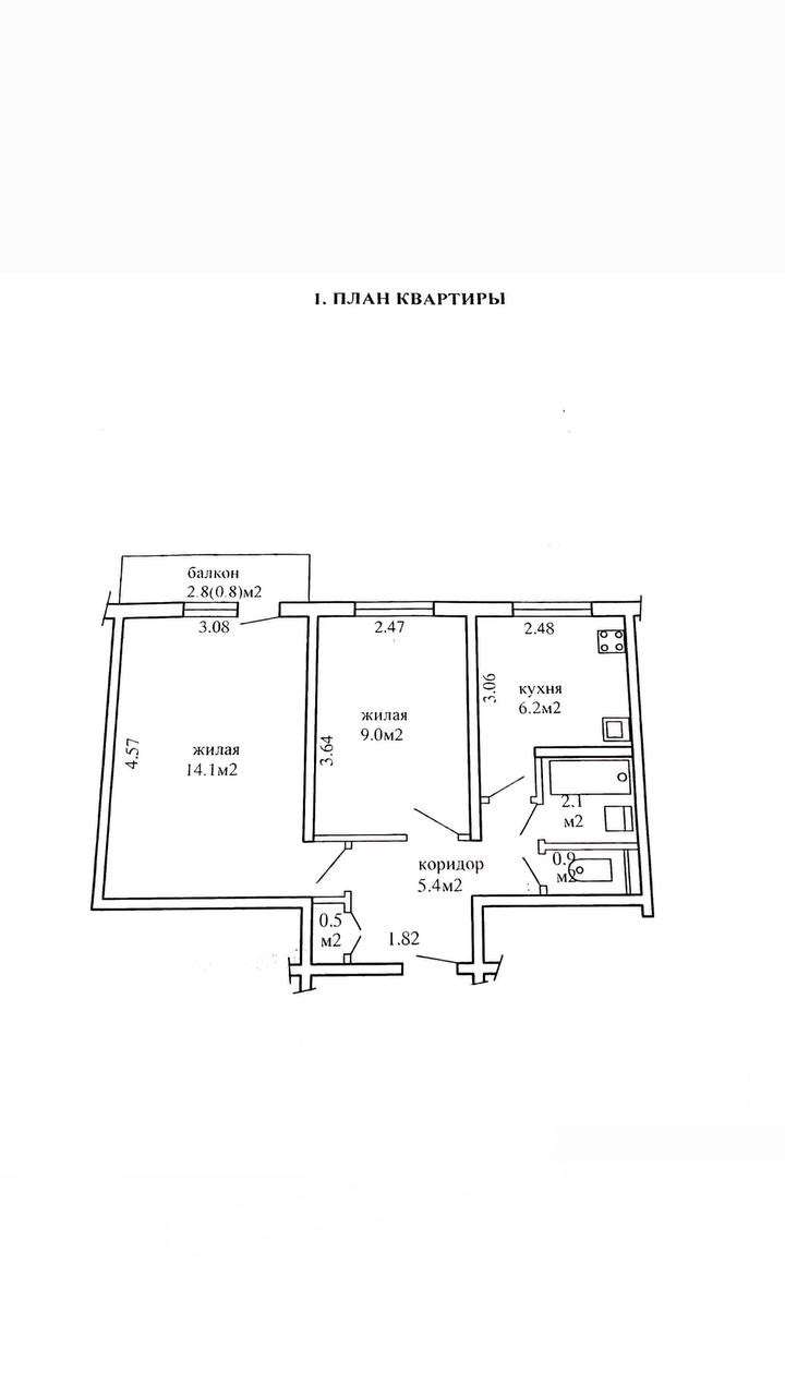
Комнаты раздельные: 14.1/9.0/кухня 6.2 м2.
Квартира не угловая, не торцевая, очень теплая, продается с мебелью и техникой.
Дом после капремонта в 2022 году. Заменили все трубы, стояк, утеплили и окрасили фасад дома, укрепили крышу и балконы, есть подвал.
Чистая продажа.
Развитая инфраструктура, хорошее транспортное сообщение, возле дома остановка общественного транспорта, через дорогу Чижовка Арена, магазины, школы, сады и иное.
