Квартира в современном, молодом и перспективном жилом комплексе Minsk World.
Квартал Тропические острова, дом Багамы.
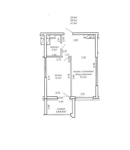
Квартира расположена на 17 этаже в каркасно-блочном доме 2024 года постройки. Рациональная планировка: просторный санузел, французское остекление и высокие потолки, что добавляет много света, широкая жилая комната. Отличная шумоизоляция.
