place
Наши филиалы: Минск

1 комнатная квартира

Продажа Минск, Ясная, 7А

Полдома по ул.Ясной д.7А в Партизанском районе, выделенный в отдельную квартиру и половина участка выставили на продажу в тихом спокойном месте рядом с парковой зоной.

 

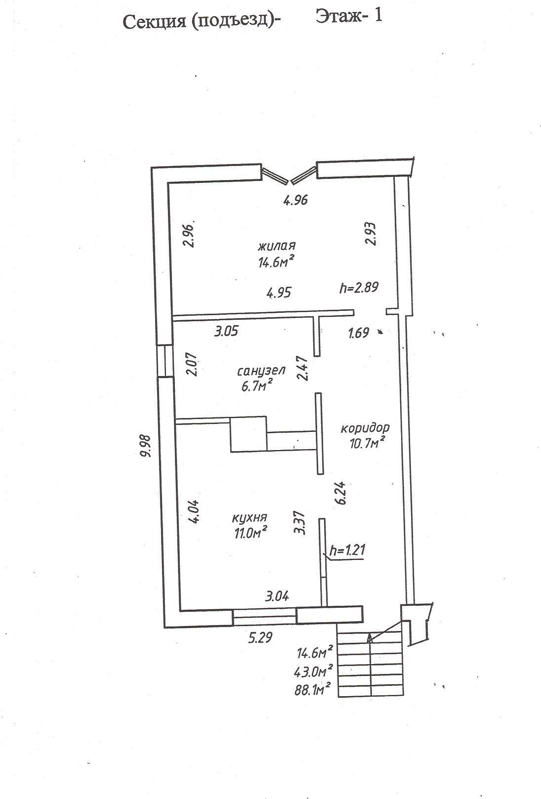
Параметры дома позволяют сделать очень привлекательную квартиру, кроме большого цокольного этажа (хозяйственное помещение 27,5 кв.м., котельная 17,6 кв.м.), первого – 43,0 кв.м., есть еще и мансардный этаж.

 

Есть проект и там можно оборудовать 2 большие комнаты (это на будущее ).

 

Центральное водоснабжение введено в дом. Канализация местная. Разводка электричества по дому осуществлена.

 

Квартира без отделки. Крыша – шифер. Вход в дом отдельный.

 

Земельный участок: хороший, ровный с плодородным грунтом. Забор из металлопрофиля и дерева. Сосед дружелюбный, без вредных привычек. Здесь действительно тихое, уютное место и все соседи в окружающих домах – достойные люди.

 

Инфраструктура развитая, все, что необходимо для жизни (городской ) в шаговой доступности: школы, различные магазины. Рядом с домом асфальтированная дорога. Развитое транспортное сообщение. Хорошее предложение тем, кто хочет жить в собственном доме в городской черте и не выезжая из города на выходные: отдохнуть, поджарить шашлык, сходить в лес (парковая зона рядом), встретиться с друзьями. Торг уместен.

Ещё больше объектов недвижимости в нашем Telegram-канале @urielt_minsk

178 378.59 BYN 62 578.00$ 2 027.02 BYN/м2 711.11$/м2
Предложить свою цену
Заполните телефон!
Введите цену или отметьте галочкой "Консультация по кредиту"
Нажимая "Отправить" я даю согласие на обработку персональных данных
Область
Минская область
Район области
Минский
Район
Партизанский
Микрорайон
Степянка
Кол-во комнат квартиры
1
Кол-во раздельных комнат
1
Площадь(О/Ж/К)
88.00/43.00/11.00
Этаж
2/2
Год постройки
2003
Материалы дома
Блок
Ремонт
Без отделки
Балконы
Нет
Сан. узел (кол-во)
Нет
Высота потолка
2.89
Номер и дата договора
269/1 от 17-11-2023
Посмотреть на карте