place
Наши филиалы: Минск

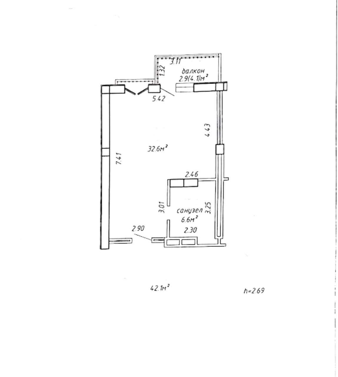
1 комнатная квартира

Продажа Минск, Олешева, 5

Современная 1-к квартира на ул. Олешева, 5 в зелёном Советском районе! Рядом школы, детсады, парки и магазины. Близко офисы, тренажерный зал Адреналин, ТЦ, зелёные зоны и Цнянское водохранилище.

 

Подземный паркинг под домом с выделенным машиноместом (прямой выход к лифту, доступно к покупке за доп оплату). Видеонаблюдение в доме и паркинге.

 

В квартире полы из керамогранита, 5 контуров тёплого пола — максимальный комфорт зимой, бойлер и домофон со звонком на моб. телефон.

 

Лоджия с новыми утеплёнными стеклопакетами — энергоэффективно и тихо. Входите и живите!

331 589.70 BYN 117 000.00$ 7 876.25 BYN/м2 2 779.10$/м2
Предложить свою цену
Заполните телефон!
Введите цену или отметьте галочкой "Консультация по кредиту"
Нажимая "Отправить" я даю согласие на обработку персональных данных
Область
Минская область
Район области
Минский
Район
Советский
Микрорайон
Я. Коласа-Рига, Некрасова, Восточная
Кол-во комнат квартиры
1
Кол-во раздельных комнат
1
Площадь(О/Ж/К)
42.10/39.20/-
Этаж
5/10
Год постройки
2018
Материалы дома
Блок
Ремонт
Хороший
Балконы
Балкон застеклен: 1
Сан. узел (кол-во)
Совмещенный: 1
Высота потолка
2.69
Номер и дата договора
39/1 от 09-03-2026
Посмотреть на карте