place
Наши филиалы: Минск

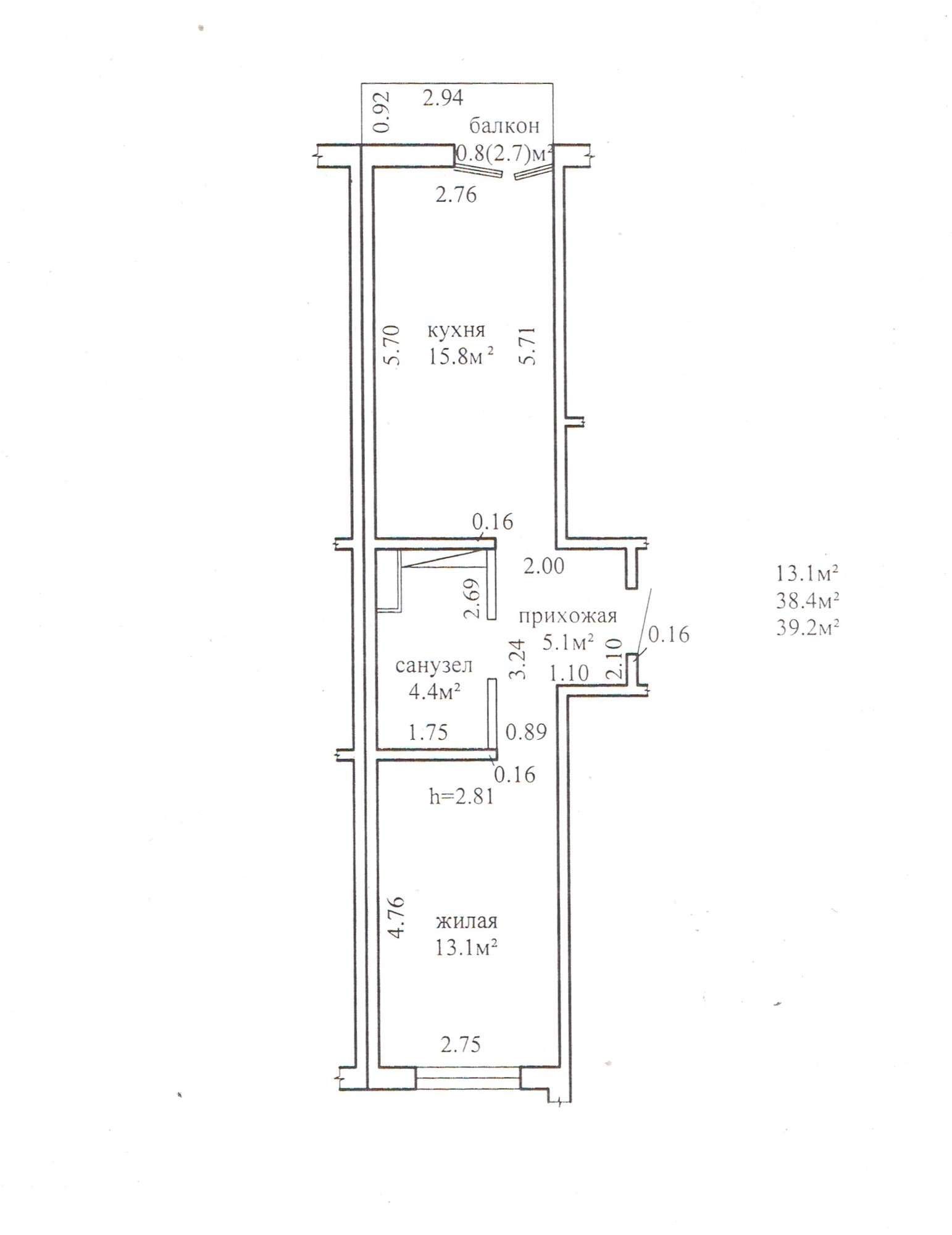
1 комнатная квартира

Продажа Колодищи, Лавандовая, 5

Продаётся квартира в самом уютном уголке ЖК "Зелёная Гавань" с машиноместом, по ул. Лавандовая.

Бульвар и гольф-поля в 5 минутах. Комфортный 3 этаж из 6-ти этажей, расположена на две стороны, открытый балкон из кухонной зоны, с/у совмещенный. Квартира с современным ремонтом и рациональным использованием пространства, который делался из качественных материалов, полностью новая техника на гарантии (кондиционер, посудомоечная машина, стиральная машина, холодильник, фильтр питьевой воды и др.), кровать с ортопедическим матрасом.

В КВАРТИРЕ НИКТО НЕ ЖИЛ.

Общая площадь по СНБ 39,2 кв.м., дом 2025 года постройки, расположен в квартале «Мелодии леса».

На первом этаже дома оборудованы удобные вспомогательные помещения: комната для мытья лап домашних животных, колясочная, оригинальная чат-доска для общения соседей. Закрытый и благоустроенный двор, включающий в себя территорию двух домов, гарантирует безопасность и спокойствие, круглосуточное видеонаблюдение. Гостевая парковка расположена по внешнему периметру за шлагбаумом. Для маленьких жителей предусмотрены детские игровые площадки, для взрослых – уютные зоны отдыха с барбекю и проектором, велобоксы.

В стоимость включено машиноместо, которое располагается рядом с домом.

Чистая продажа, никто не зарегистрирован, ключи в день сделки. Звоните организуем просмотр.

374 202.72 BYN 126 900.00$ 9 545.97 BYN/м2 3 237.24$/м2
Предложить свою цену
Заполните телефон!
Введите цену или отметьте галочкой "Консультация по кредиту"
Нажимая "Отправить" я даю согласие на обработку персональных данных
Область
Минская область
Район области
Минский
Кол-во комнат квартиры
1
Кол-во раздельных комнат
1
Площадь(О/Ж/К)
39.20/13.10/15.80
Этаж
3/6
Год постройки
2025
Материалы дома
Панель
Ремонт
Отличный
Балконы
Балкон: 1
Сан. узел (кол-во)
Совмещенный: 1
Высота потолка
2.81
Номер и дата договора
146/1 от 06-10-2025
Посмотреть на карте